

創造一個清晰的spa水療溫泉中心設計,合理定位。使用自然、可信的材料。借鑒浴場主建筑的歷史。特熱博恩的新溫泉大樓需要所有這些,但最重要的是建筑師的積極參與。





我們受邀作為室內建筑師參與新溫泉大樓的項目,但我們逐漸說服了投資方改變設計,開放布局,簡化設計,并在可能的情況下改變外立面。設計必須尊重大樓現有的支柱系統。因此,新的布局試圖在柱子之間穿梭,為桑拿、蒸汽和隨后的放松創造空間。





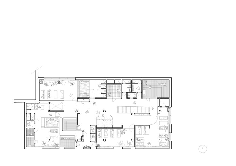
大堂將游客引入建筑的內部,這里是各種業務的交匯點,包括建筑與現有水療中心的連接。通過更衣室,游客可以到達蒸汽浴和 Kneipp 步道等第一道護理。一樓還有幾間按摩室,內設云杉生物木制的木制品。





二樓有幾種桑拿、蒸汽、可俯瞰森林的光線充足的休閑室,還有一個小型私人水療中心可供出租。Heradesign 天花采用不同顏色和不同的懸掛系統,貫穿整棟建筑,除其他外,還能提供舒適的隔音效果。





特熱博恩極光水療中心的新擴建工程是一項巨大的挑戰,也是延續 20 世紀 70 年代水療中心品質的一次嘗試。因此,我們繼續使用當地的碎石、淺色瓷磚和木質覆層。所有這些都與洗臉盆或制冰機等混凝土元素相得益彰。





燈光與玻璃隔斷和欄桿形成物質聯系,與木材和薄窗簾形成鮮明對比,完成了自然桑拿與浴場脆弱歷史之間的相互聯系。室內還配有專門為水療中心創作的原創畫作,使整體氛圍更加寧靜和放松。






文章轉自:Category : 室內設計 | Tags : spa會所設計 , spa設計 , spa館設計 , 養生會所設計 , 養生館設計 , 水療中心設計 , 水療會所設計 , 溫泉中心設計
GAVINDESIGN.COM 清晰定位自然可信寧靜放松的溫泉中心設計
? 非特殊說明,本文版權歸原作者所有。
公司主營業務:
溫泉度假酒店(村)、旅游景區規劃設計、建造、共營;
溫泉水處理設備、溫泉系統設備、溫泉加熱恒溫設備研發制造;
兒童主題樂園、綜合旅游景區、休閑公園、濕地景觀規劃設計、施工圖設計;
鄉村旅游、美麗鄉村、休閑農業、生態農莊規劃設計; 特色民俗村鎮、古村落保護性規劃設計。
24小時直線: 13306166441 (南京)


恒易源溫泉科技
魯ICP備16004669號
恒易源溫泉科技公司坐落于泉城濟南,根據碳14測定濟南泉水水齡為23500年至46000年。濟南除了擁有豐富的泉水資源,還蘊藏著儲量巨大的天然溫泉地熱資源,素有南冷泉(飲用)北熱泉(沐浴)之美譽。
濟南于2014年榮獲“中國溫泉之都”稱號。公司專注于溫泉設備、特色溫泉湯浴、溫泉水處理設備、SPA水療等設備的研發制造,提供溫泉(冷泉)系統化解決方案。公司分別在濟南商河和江蘇宜興設有研發制造基地。